Information
Häufig gestellten Fragen
Fenster und Laibung richtig messen, um passende Größe zu finden?

SCHRITT 1
FENSTER RICHTIG MESSEN
Beispiel:
Laibung und Innenabmessungen Ihrer Fensteröffnung
H
Höhe: 1000mm
Die Höhe wird bis zur Fensterbank gemessen!
B
Breite: 600mm
A
Bitte prüfen Sie alle Abstände zu weiteren Elementen z.B. Fenster, Tür, Wand usw.
In unserem Beispiel ist die Leibung 100mm tief.
Diese Angabe wird bei unserer Variante CLASSIC benötigt.

SCHRITT 2
ABSTÄNDE BERÜCKSICHTIGEN
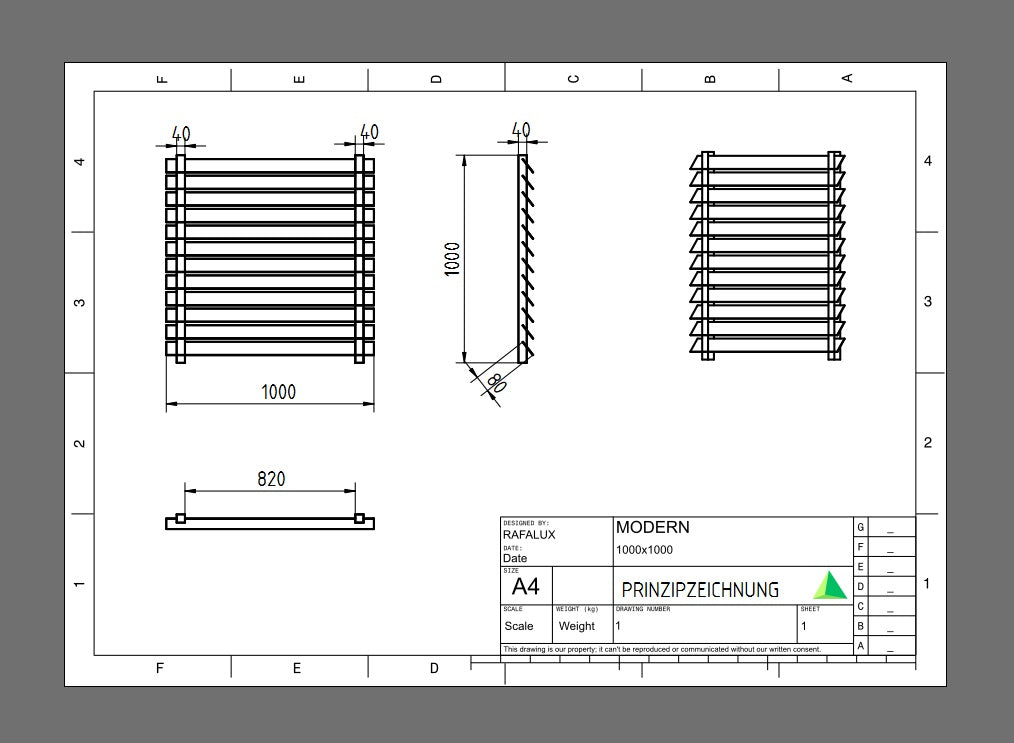
Variante MODERN
Das Profil wird 40mm höher an der Fensteröffnung angesetzt und an der Fassade befestigt. Diese Variante lässt gewissen Spielraum für den Aufmaß. Die erste Lamelle ist somit bündig mit dem Fenster.
Hinweis:
Bauseitigen Einbaugegebenheiten prüfen, z.B. Rollladenkasten, Antrieb, Rollläden usw. Die Lamellen haben einen Überstand von 50mm vom Profil zu den Seiten. Bitte bei Ihrer Planung bzw. Bestellung berücksichtigen!
Variante CLASSIC
Das Profil wird direkt in der Laibung montiert. Der Aufmaß lässt kein Spielraum für Abweichungen. Höhe, Breite und Tiefe genau messen.
Hinweis:
Bauseitigen Einbaugegebenheiten prüfen, Leibung, Dämmung, Befestigungsuntergrund wie z.B. Holz, Stein, Mauerwerk usw.

SCHRITT 3
PASSENDES RAFALUX FESTELEMENT WÄHLEN
In unserem Bespiel mit Abmessung der Fensteröffnung
1000x600mm benötigen wir folgendes Festelement:
Variante MODERN
H = 1000mm + 40mm (Überstand nach Oben) = 1040mm
B = 600mm Innenmaß
+40mm Profil +50mm Lamelle (Überstand Links)
+40mm Profil +50mm Lamelle (Überstand Rechts)
= 780mm Außenmaß
Passende Größe:
H: 1040mm
B: 780mm
Innenmaß: 600mm
-------------------------
Variante CLASSIC
H = 1000mm
B = 600mm
T = 100mm (Tiefe Laibung)
Passende Größe:
H: 1000mm
B: 600mm

Vielseitig & Flexible
Festelement bietet gewissen Spielraum für möglichen Ausgleich. Die Profile können an die Laibungs- und Fassadengegebenheiten leicht angepasst werden.
Ausdehnungsfugen dienen dafür, dass das Material bei möglichen Temperaturveränderungen arbeiten kann.

PRINZIPZEICHNUNG